
BAK BESI LPG TABUNG GAS PERTAMINA ISUZU NMR HD 150 PS
Isuzu Jakarta menjual Bak Besi LPG Tabung Gas Pertamina Isuzu NMR HD 150 PS Euro 4 dengan spesifikasi cat merah Full peruntukan angkutan Gas 3 kg maupun 12 Kg. Truk Isuzu NMR HD dengan spesifikasi mesin Diesel Common Rail terbaru bertransmisi 6 percepatan dengan kapasitas angkut mancapai 8.25 Ton.
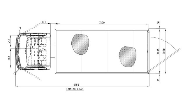
Spesifikasi dan Dimensi Bak Besi gas LPG Pertamina

Truk Bak Besi LPG Tabung Gas Pertamina Isuzu NMR HD 150 PS ini menggunakan Chassis tipe Variant NMR HD 5,8 yang memiliki Rasio gardan lebih besar, dan kekutan untuk melewati medan jalan menanjak serta jalan datar dapat berlari lebih cepat.

Spesifikasi Requarement Pertamina dengan Bak besi yang di sesuaikan dengan dimensi SKRB , serta knalpot pembuangan gas dipindah ke depan dengan posisi gas buang ke samping dan Saklar pemutus arus ACCU yang bekerja pada saat melakukan proses muat dan bongkar muatan Gas.

Bak Besi LPG Tabung Gas Pertamina Isuzu NMR HD 150 PS ini memiliki Dimensi Bak P.430 x L.200 x T.140 CM dengan model kisi serta papan nama dan pintu belakang model Kupu kupu serta model buka samping.

Baca Juga :
Spesifikasi dan Dimensi NMR HD 5,8
Dimensi :
Panjang / Overall Length [OAL] | 6.135 | mm |
Lebar / Overall Width [OW] | 1.990 | mm |
Tinggi / Overall Height [OH] | 2.345 | mm |
Jarak Sumbu / Wheelbase [WB] | 3.360 | mm |
Julur Depan / Front Overhang [FOH] | 1.110 | mm |
Julur Belakang / Rear Overhang [ROH] | 1.665 | mm |
Jarak Terendah ke Tanah / Minimum Clearance [HH] | 200 | mm |
Jejak Depan / Front Tread [AW] | 1.475 | mm |
Jejak Belakang / Rear Tread [CW | 1.495 | mm |
Cabin to End [CE] | 4.530 | mm |
Mesin :
Model | 4HL1-TCS | |
Tipe / Type | Direct Injection Commonrail SOHC 4 Cylinder, VGS Turbo Intercooler | |
Sistem Kontrol Emisi | EURO4 with EGR & DOC | |
Diameter x Langkah / Bore x Stroke | 115 X 115 | mm |
Isi Silinder / PistonDisplacement | 4,778 | CC |
Tenaga Maksimum / Maximum Power | 150 / 2,600 | PS/ RPM |
Torsi Maksimum /Maximum Torque | 41 / 1,400 – 2,600 | Kg.M/rpm |
Transmisi :
Mode | MYY6S | |
PerbandinganGigi / Gear Ratio | 1ST | 5.979 |
2ND | 3.434 | |
3RD | 1.862 | |
4TH | 1.297 | |
5th | 1.000 | |
6th | 0.759 | |
REV | 5.701 | |
PerbandinganGigi Terakhir / Final Gear Ratio | 5.8 |
Berat & Kapasitas Truk :
Berat Kosong Kendaraan / Curb Weight | 2.570 | Kg |
BeratTotal Kendaraan /Gross VehicleWeight [GVW] | 8.250 | Kg |
Kapasitas Gardan Depan / Capacity Front Axle | 2.710 | Kg |
Kapasitas Gardan Belakang / Capacity Rear Axle | 5.540 | Kg |
Sistem Rem :
Tipe/Type | Hydraulic |
Rem Kaki / Service Brake | Hydraulic, saluran ganda dengan vacum booster |
Rem Tangan / Hand Brake | Expanding pada transmisi belakang |
Sistem Pengereman Gas Buang / Exhaust Brake | Exhaust brake, tuas berada di stir |
Velg & Ban :
Ukuran Ban | 7.50-16-14PR |
Ukuran Velg | 16 X 6.00 |
Sistem Suspensi :
Depan / Front | Semi eliptical laminated leaf spring dengan shock absorber berdaya ganda |
Belakang / Rear | Semi eliptical laminated leaf spring dengan shock absorber berdaya ganda |
Kelistrikan & Lainnya :
Kapasitas Tangki / Fuel Tank Capacity | 100 | Liter |
Radius Putar Minimum / Minimum Turning Radius | 7,1 | Meter |
Daya Tanjak Maksimum / Maximum Gradeability | 44 | % |
Kecepatan Maksimum / Maximum Speed | 100 | Km/Hour |
Aki / Accu | 2 X 12 V – 65 Ah | V-AH |
Alternator | 24 – 60 | V-A |
Kamera Mundur / Reverse Parking Camera | ADA | |
Audio Head Unit | ADA | |
USB Charging System | ADA | |
APAR (Alat Pemadam Api Ringan) | ADA | |
Fan Blower | ADA | |
Garansi / Warranty | 3 Tahun / 100,000 km |